- 最新文章
- 成功案例
- 2017-5-2论坛起家,潮起潮落用尽了谁的勇
- 2016-11-9地康地暖新风系统-电子产品说明书汇总
- 2016-6-13选远大新风畅游马尔代夫!!
- 2015-7-7水~电~暖~基本知识
- 2015-7-7空开、面板安装中的重要细节!
- 2015-6-10DK地康水、电、地暖、新风讲解家庭空开分路的重要性。
- 2015-6-9地康水、电、地暖、新风讲解怎么更合理的设计照明。
- 2015-6-8地康水、电、地暖、新风讲解卫生间预留水电功能小建议
- 2015-6-5地康与大家分享下远大新风机的工作原理及后期维护的方法!
- 2015-6-4地康讲解水电如何控制预算与上门测量的实质性
- 2012-9-11地康水电改造装修案例集锦4
- 2012-9-11地康水电改造装修案例集锦3
- 2012-9-11地康水电改造装修案例集锦2
- 2012-9-11地康水电改造装修案例集锦1
- 2012-9-11成功案例小区
最新加入
- 地康智能走向成熟智能家居4S概念
地康调查
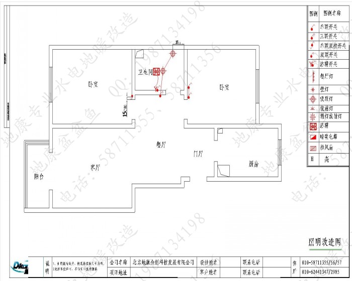
27号楼两居户型
发布于2012-7-28 16:10:04 已被点击27478次
!!!注意!!!水电施工前,水路必须先打压,开发商预留的水路绝大多数不合格,漏水风险很大!!!
原有插座不到位,后期改动比较多,插座走的都是4平方的电线。电改都是就近引线。

照明改动比较少,卫生间加了一个浴霸和两个吸顶灯!

弱电改动只增加了一个网络端口!

卫生间的上水部分有水口的移动,冷水管改动比较大;下水移动了一个地漏。

厨房的上水路:热水器和洗衣机的水口位置有变动;下水没有变动。
水电改造总价为4810元。
如需详细咨询地康专业水电地暖所有设计方案请与我们联系:58711355 58711356
发布于2012-7-28 16:10:04已被点击27477次
上篇文章:已经没有了
下篇文章:31-2-902水电改(2012-9-11 17:15:14)